Over $150,000 in Gross Profit Potential!
- 85% Remodeled Already!
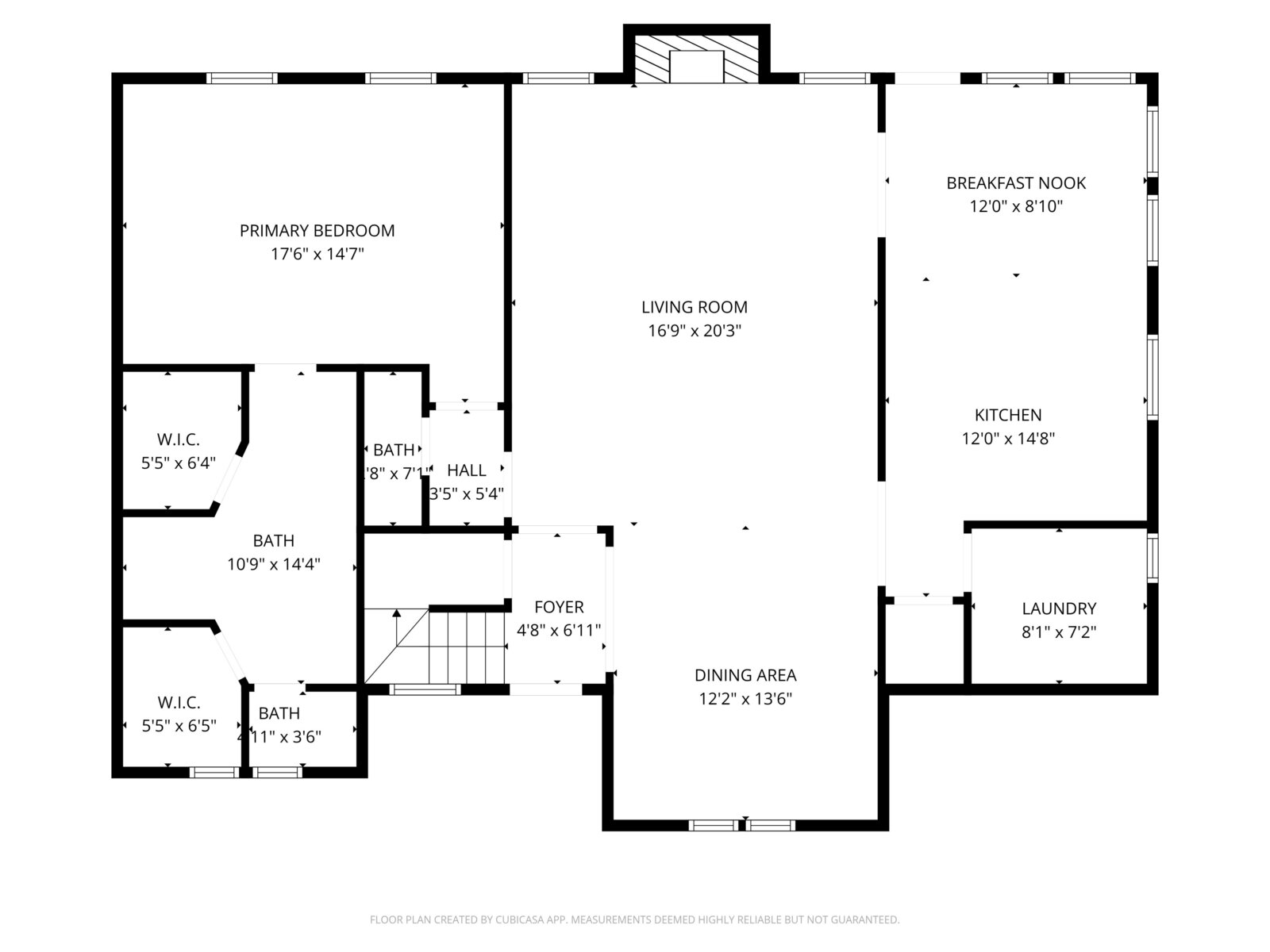
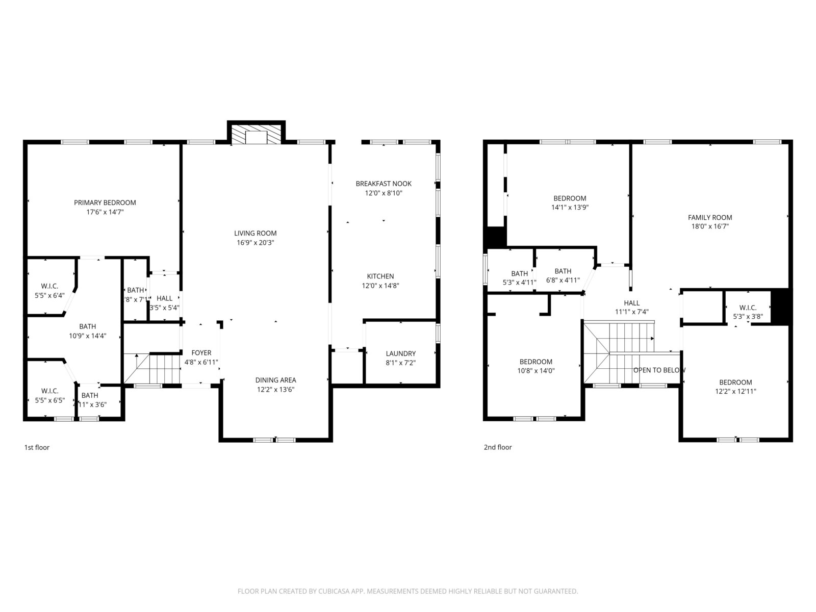
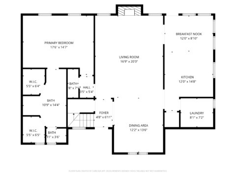
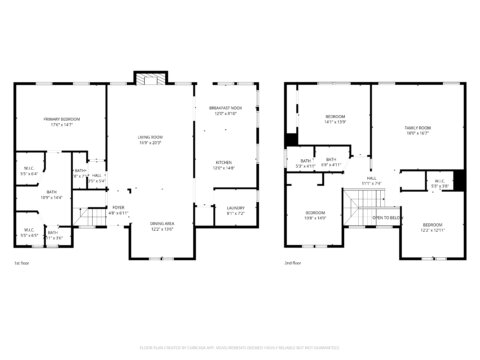
- New Flooring
- Like-New Bathrooms
- Very Light Remodel
- Back, Covered Patio
- Incredible Pool
- Amazing Neighborhood
- Roof – Visually Inspected for Leaks & Gaps, Age Unknown (Foreclosure)
- Electrical – Tested with Generator and Functional
- Plumbing – Tested and Functional (Held Pressure)
- Low Days on Market
- Strong Comps!
Access: Vacant on Lockbox
Click Here for Property Condition Report
Estimated After-Renovation Value (ARV): $450,000 to $455,000+ (Link to Comps)
Comps at a Glance:
- 11418 Little Orchard Court Sold after 29 Days on Market for $472,000 or $166.02 per sqft, yielding a subject ARV of approximately $450,000
2. 12407 Wealdstone Dr (Located 1 street over) Sold after only 5 days on market for $435,000 or $165.90 per sqft , yielding a subject ARV of approximately $450,000
3. 16610 Avenfield Road (Located a few streets over) Sold for $477,500 as is slightly larger than the subject, yielding a subject ARV of approximately $455,000
Deposit: $7,500
Cash or Hard Money Only
_______________________________________________________________
PROPERTY IS BEING SOLD AS-IS, WHERE IS, AND BUYER IS TO PAY ALL CLOSING COSTS. NO REPRESENTATIONS WRITTEN OR ORAL ARE MADE CONCERNING THE PROPERTIES ABOVE. PRICE BASED ON AND REQUIRES A CASH OR PRIVATE/ HARD MONEY OFFER AND IS NET TO SELLER. NO CONVENTIONAL OR FHA FINANCING IS ACCEPTED UNLESS OTHERWISE INDICATED. ALL OFFERS ON PROPERTIES REQUIRE A $7,500 OR HIGHER, NON-REFUNDABLE EARNEST DEPOSIT AND HAVE AN AVERAGE 7 DAY CLOSE OF ESCROW. BUYERS TO DO THEIR OWN INDEPENDENT DUE DILIGENCE. INTEGRITY PRIME, LLC, WHOLESALE PROPERTIES HOUSTON AND/ OR THE ASSOCIATED MEMBERS OR EMPLOYEES MAKE NO GUARANTEES CONCERNING PROPERTY CONDITION, VALUE, CHARACTERISTICS OR FINANCIAL BENEFITS. NOT AN APPRAISAL. OFFERED BY DOUBLE-CLOSE OR ASSIGNMENT OF CONTRACT. BUYER MUST COMPLETE ALL DUE DILIGENCE BEFORE SUBMITTING AN OFFER AND EXECUTING ANY CONTRACT. DUE TO THE NATURE OF OUR BUSINESS TERMINATION OPTIONS / OPTION PERIODS CANNOT BE ACCEPTED. WE MAY NOT HAVE TITLE TO THE PROPERTY AND MAY PLAN TO HAVE TITLE AT A FUTURE DATE. IF WE DO NOT HAVE TITLE, WE ARE MARKETING OUR EQUITABLE INTEREST IN THE PROPERTY. THE EQUITABLE INTEREST IS AN EXECUTED PURCHASE AGREEMENT TO PURCHASE THE PROPERTY. INTEGRITY PRIME, LLC, WHOLESALE PROPERTIES HOUSTON AND/ OR THE ASSOCIATED MEMBERS OR EMPLOYEES DO NOT REPRESENT YOU OR ANY OTHER PARTY OTHER THAN INTEGRITY PRIME, LLC OR WHOLESALE PROPERTIES HOUSTON IN THIS TRANSACTION. EQUAL OPPORTUNITY HOUSING. NO PURCHASE NECESSARY TO WIN GIFT CARDS. MUST CLAIMED WITHIN 30 DAYS OF DRAWING. ONE OR MORE MEMBERS OR EMPLOYEES OF INTEGRITY PRIME, LLC AND/ OR WHOLESALE PROPERTIES HOUSTON ARE LICENSED REAL ESTATE AGENTS IN THE STATE OF TEXAS.
